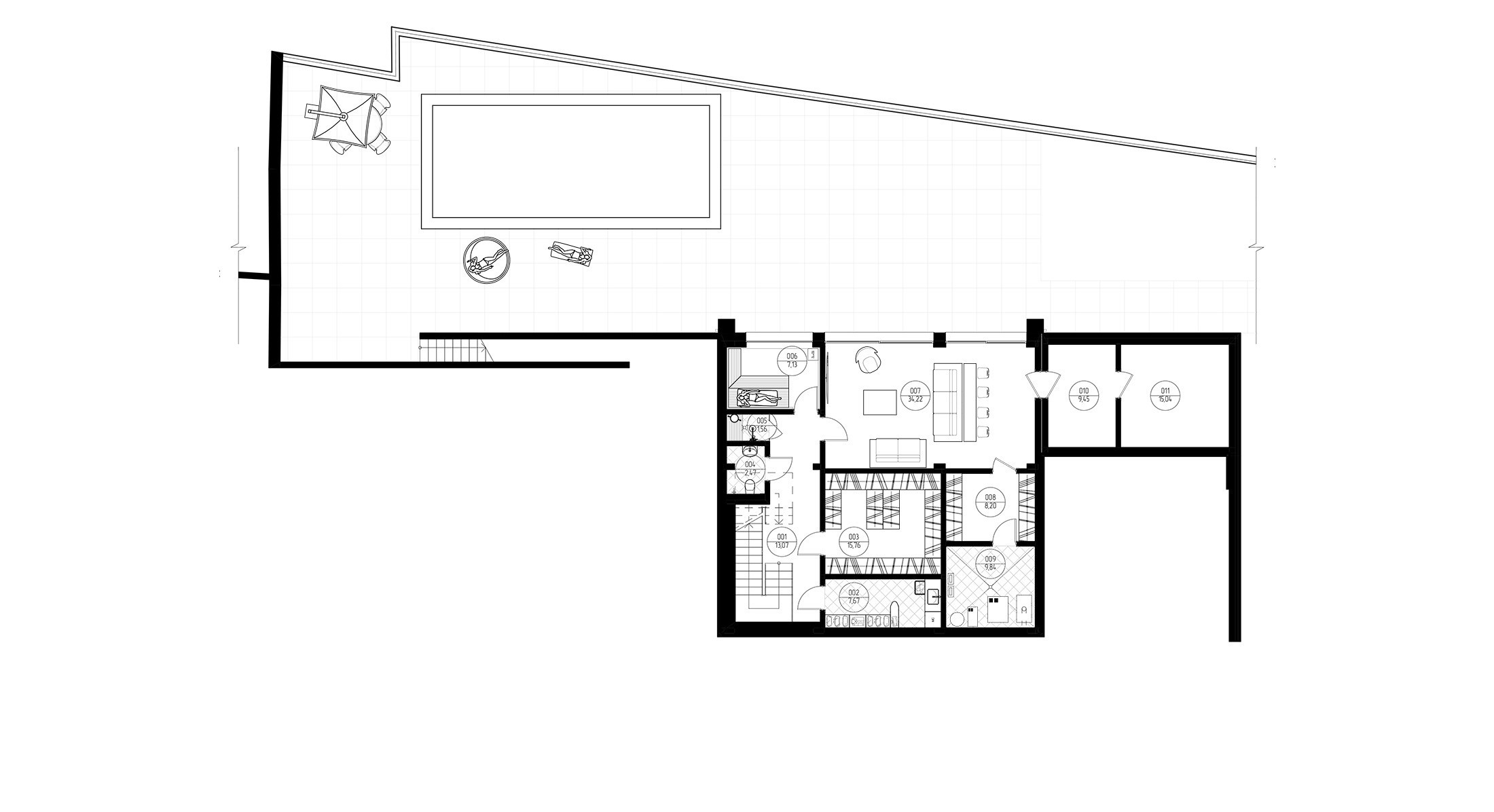
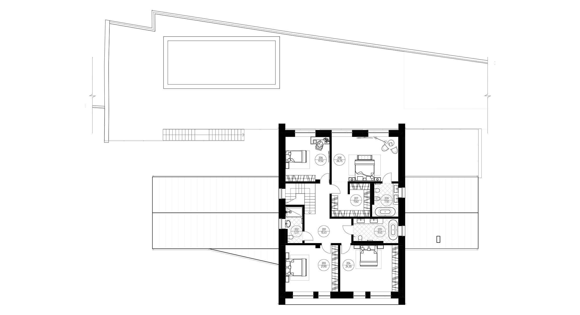
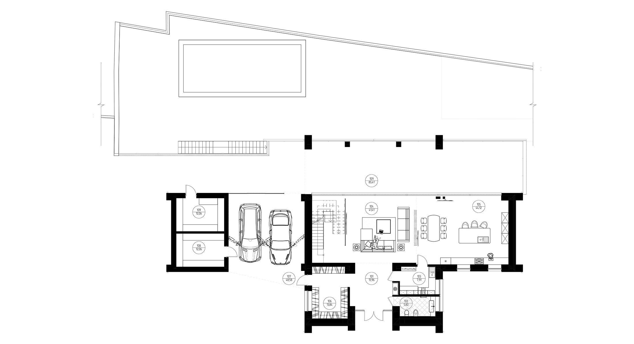
277 HOUSE

Локація:: Київ
Площа:: 450
Площа ділянки:: 22 соток
Рік проекту:: 2022