Портфоліо
Послуги
Блог
Про нас
Контакти
EN
UA
+380662042520
callback
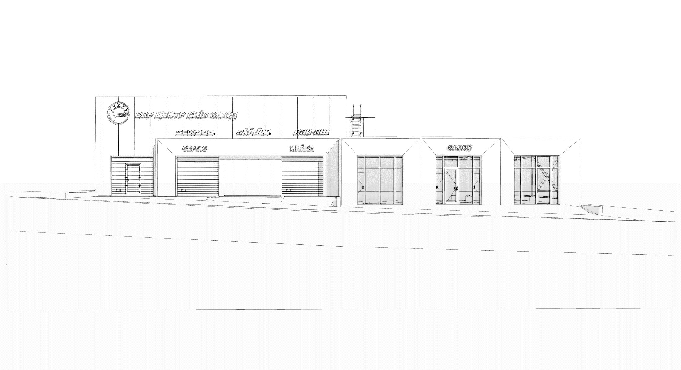
BRP center
×
Зворотний дзвінок
залишити заявку
Вашу заявку відправлено
Будь ласка, заповніть усі поля