Дом 209

Год: 2017
Площадь участка: 20 соток
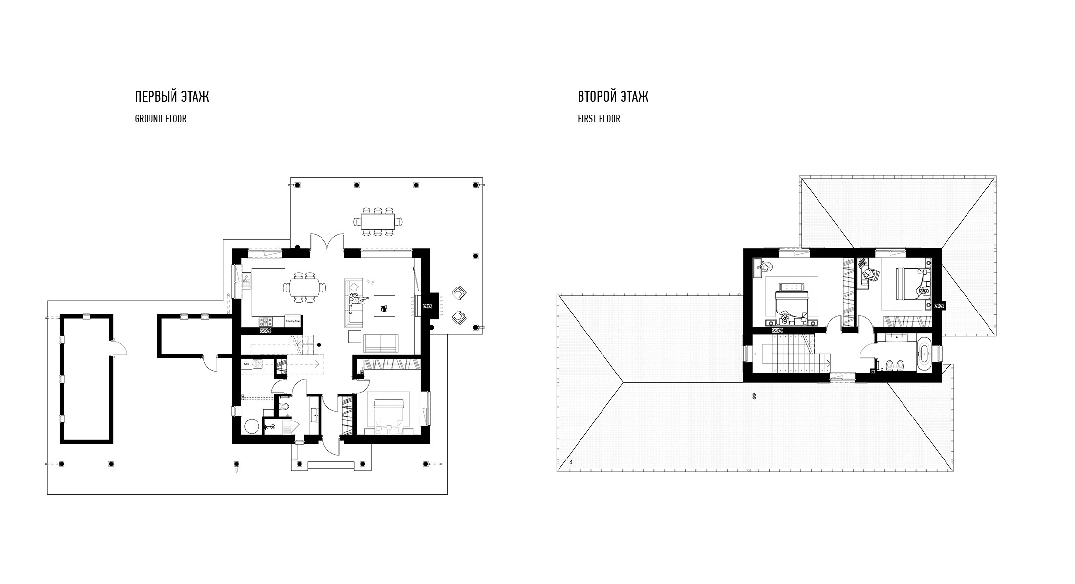
Общая площадь: 150 м2
Расположение: Бориспольский р-н