AXIS TO TREE

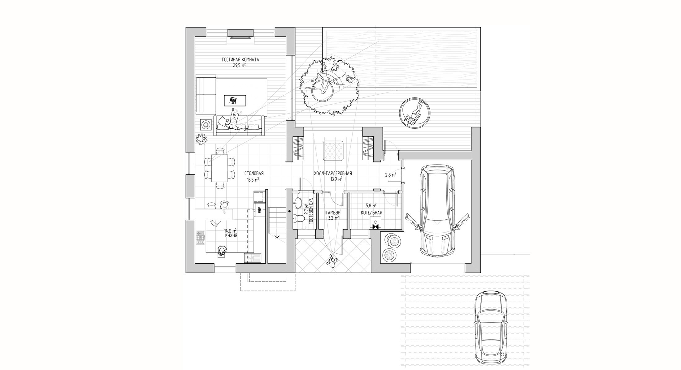
Современный, лаконичный и удобный коттедж, запроектирован под девизом: «Все необходимое, ничего лишнего!». При небольших площадях домов приходится выбирать между максимизацией жилой площади и комфортом. В данном случае приоритет был поставлен на комфорт и эстетику. Проект отличается особой связью внешнего и внутреннего пространств, объединяя их, архитектор компенсирует замкнутость интерьера пространством благоустроенного внутреннего двора. В этом проекте отсутствуют случайности, все транзиты просчитаны и посажены на незримые оси визуального восприятия, каждую из которых определяют грамотно расположенные акценты, будь то дерево или световой проем. Первый этаж состоит из просторного холла-гардероба с видом на бассейн, который комфортно объединяет зону студии и бытовую зону с гаражом. Студия представляет собой пространство, состоящее из кухни, столовой и гостиной. Второй этаж это в первую очередь, просторная мастер спальня со своим гардеробом и ванной комнатой. Из спальни открывается замечательный вид на патио, однако имеется возможность переноса окна на задний фасад, открывая вид на задний двор. Холл второго этажа с современным минималистическим камином объединяет мастер-спальню с двумя детскими, а также ванной общего пользования и гардеробной комнатой. Такая связь исключает появление ненужных коридоров. Экстерьер выполнен в передовых тенденциях минималистических домов. Строгие фасады смягчены теплом дерева, локально используемого для отделки. Незначительные консоли второго этажа наравне с декоративной металлической конструкцией формируют неординарность объемно-пространственного решения. Данный коттедж без сомнения можно назвать образцом дома в стиле минимализм.