120 Сompact house

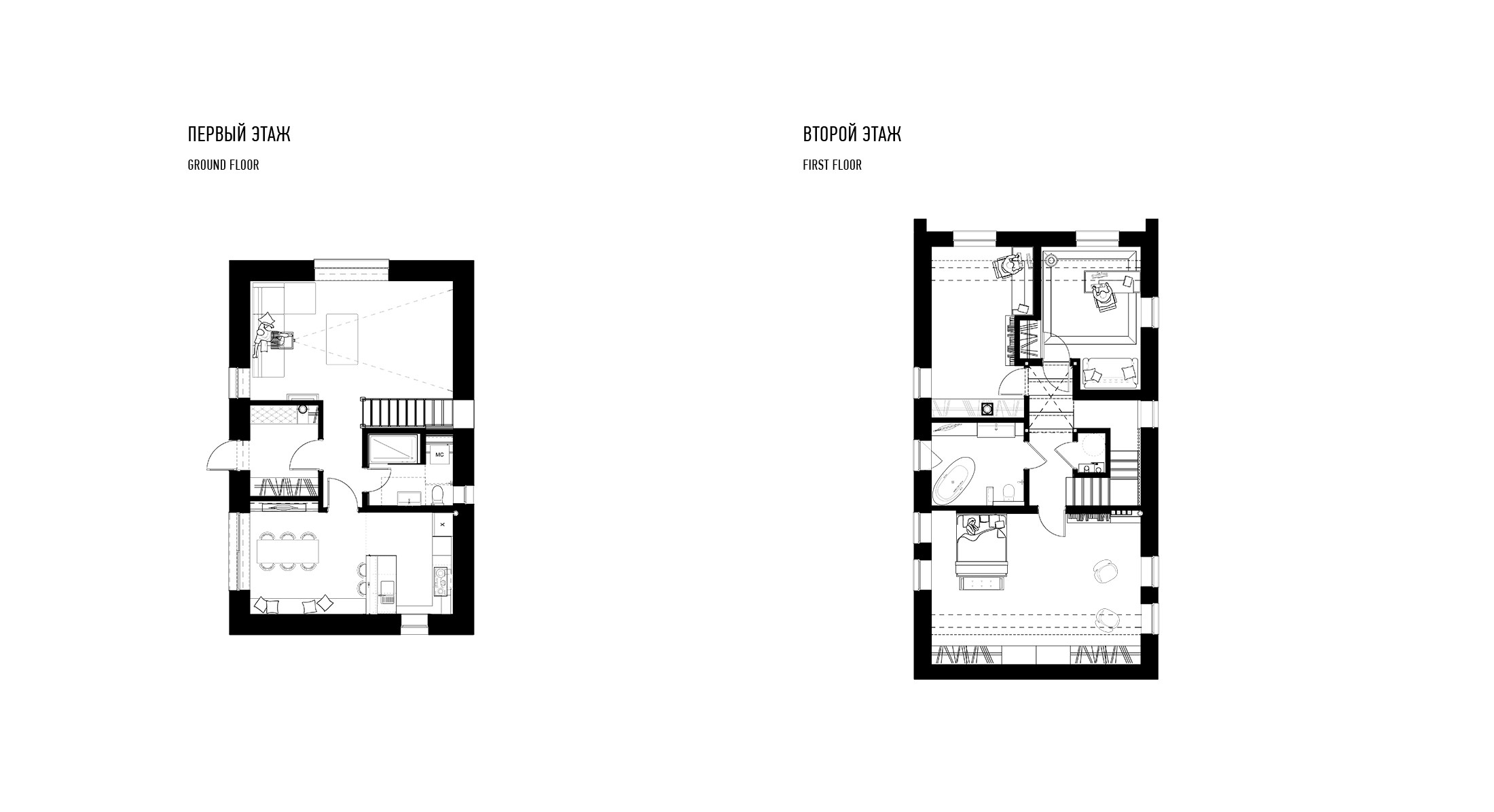
Компактный коттедж общей площадью 150м2, обладает незаурядной вместительностью с коэффициентом полезной площади в 90%. Минимизация транзитных зон дала возможность организации просторной гостиной с панорамным окном, кухни-столовой в 22 м2, двух детских спален на втором этаже (18,5 и 16,2 м2) и спальни хозяев 30,5м2, а также гостевого санузла, ванной комнаты 7,35м2, и кладовой. Таким образом по перечню помещений дом способен составить конкуренцию коттеджам более высокого класса.

В основу проекта положены принципы энергоэффективных технологий и минимизация бюджета на строительство, за счет принятия оптимальных проектных и конструктивных решений. Увеличение затрат на утепление качественным базальтовым утеплителем 100мм в композиции с пенобетонными блоками 400мм, приводит к повышению коэффициента сопротивления теплопроводности ограждающих стен с нормативного 3,2 до практического 5,42 м20С/Вт, и благоприятно отражается на бюджете дальнейшей эксплуатации дома, как в зимний, так и летний периоды. При среднемесячной температуре -50С (январь, февраль), тепловые потери дома составят 4,2КВт*ч, а в месяц дом будет потреблять всего 3 124 КВт.

Год: 2015
Площадь участка: 25 соток
Площадь дома: 150 м2
Расположение: Подгорцы